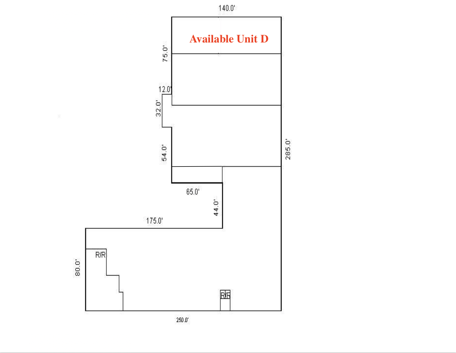
End cap unit available for lease, Unit D (6,800 sqft) at $11/SQFT/YR Gross (water, property taxes, property insurance all paid for by landlord and included in the monthly rent). Tenant would be responsible for electricity/gas & internet of the unit.
Unit D is an end cap unit and has three drive in doors- one on the east, west, and north sides of the building. Unit comes with restroom and and a small office/breakroom with a sink.
The property is +/- 9 acres and has three buildings: One approximately 45,300 square foot industrial building (where Unit D is), one approximately 12,000 square foot building, and one residential building.
Located on the northwest corner of the intersection of Weld County Road 44 and Weld County Road 35, the property has three points of full access- two on County Road 44 and one on County Road 35.
U.S. Route 85 is part of the U.S. Highway system that travels from the Mexican border in El Paso, Texas north to the Canadian border in Fortuna, North Dakota and goes through much of Colorado, including Weld County. Among the 64 counties in Colorado, Weld County ranks eighth in total population and since 2010 the population has grown by 45.9%.








